Godišnja ostvarenja
H. Auf Franić, T. S. Franić i V. Rister: Filozofski i Učiteljski fakultet u Rijeci
Autor/izvor: DAZ 14/12/2011
Predstavljamo nominirane za godišnje nagrade UHA-e. U kategoriji za najuspješnije arhitektonsko ostvarenje u 2011. godini za koje se dodjeljuje nagrada Viktor Kovačić nominiran je projekt Filozofskog i Učiteljskog fakulteta Sveučilišta u Rijeci, autorskog tima Hildegard Auf-Franić, Tin Sven Franić i Vanja Rister.
Filozofski fakultet i Učiteljski fakultet Sveučilišta u Rijeci
Autori: Hildegard Auf-Franić, Tin Sven Franić i Vanja Rister
Suradnici: Ana Aščić, Marina Bertina, Tamara Brixy, Tajana Jaklenec, Vedrana Jančić, Luka Korlaet, Mia Roth Čerina
Lokacija: Rijeka
Fotografije: Robert Leš
Godina projektiranja: 2005. – 2008.
Godina dovršetka gradnje: 2010.
Izvođač: LAVČEVIĆ–INŽENJERING d.o.o., SPLIT
Površina lokacije: 7800m²
Ukupna tlocrtna površina: 21000 m²
Troškovi gradnje: 7590 kn/m²

Neposredni kontekst zgrade Filozofskog fakulteta i Učiteljskog fakulteta formiran je urbanističkim planom novog kampusa Sveučilišta u Rijeci na mjestu bivše vojarne na Trsatu. Program fakulteta je kompleksan: dvije institucije s desetak studijskih programa i isto toliko odsjeka i pratećim prostorima.

aksonometrija
Oblikovana je struktura zgrade koja artikulira vitalno ispreplitanje brojnih aktivnosti i korisnika. Ona se čita kroz presjek i tlocrt, te omogućuje prostornu preglednost, efikasnu komunikaciju i fleksibilnost.

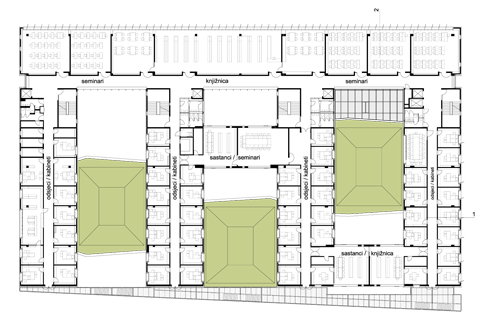
tlocrt 1.kata

tlocrt 3. kata

tlocrt 4. kata
Donji dio zgrade s unutarnjom ulicom, kroz presjek okuplja javne prostore: predavaonice, knjižnicu, aulu i otvorene atrije. Gornji dio zgrade sadrži mirne radne prostore: kabinete, seminare, te zelene krovove predavaonica. Također, tlocrtno su oblikovane tri zone od istoka prema zapadu: prostori seminara i uprave uz unutarnju ulicu, prostori odsjeka i predavaonica, te prostori otvorene galerije –evakuacijskog puta.

presjeci
Prostorna i funkcionalna struktura čita se i kroz materijalizaciju: donji dio je transparentan i ekstrovertiran u aluminijskoj ostakljenoj fasadi, s umetnutim grupama predavaonica kao volumenima presvučenim perforiranim limovima. Gornji dio zgrade je introvertiran, obložen eternitnim pločama blagih promjena u nijansi žutog kolorita i ozelenjenim kupolastim krovovima predavaonica ispod. Otvorenu galeriju čini tekstura rešetkastih gazišta i perforirane opne neutralnog kolorita.

Unutar kompaktnog volumena nastaje niz karakterističnih javnih i intimnih mjesta: transparentni predprostori predavaonica uz zasjenjena dvorišta i introvertirani traktovi pojedinih odsjeka uz brežuljkaste ozelenjene krovove. Lebdeće zajedničke prostorije odsjeka - mostovi ujedno i povezuju različite dijelove fakulteta. Prozračne terase galerije služe kao alternativna komunikacija po lijepom vremenu i prostor odmora na otvorenom.


Ostale nominirane projekte pogledajte ovdje.